
Gewerbe- / Büroräume im Rathaus Breidenbach zu vermieten
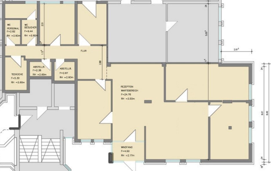
Die Gemeinde Breidenbach bietet im Erdgeschoss des Gemeindezentrums / Rathauses Gewerbeflächen bzw. Büroräume zur Anmietung an. Die Räume wurden zurückliegend durch eine Personalvermittlungsgesellschaft sowie mehrfach durch Physiotherapie-Praxen genutzt und verfügen über eine Gesamtfläche von ca. 163 qm (6 Räume plus Rezeptions- und Wartebereich, 2 Abstellräume, 2 WC-Räume, kleiner Küchenraum). Sie sind bezugsfertig und verfügen über relativ neue Böden.
möglicher Mietbeginn: | kurzfristig möglich |
Preis: | 6 € / qm (978 € zzgl. NK) |
Lage: | Ortszentrum Breidenbach gegenüber der Apotheke |
Provision / Ablösezahlung: | keine |
Parkplätze: | direkt vor dem Gebäude |
Sofern Sie Interesse haben und / oder eine Besichtigung wünschen, sprechen Sie uns bitte an. Denkbar ist auch, dass die Räume künftig als sog. Co-Working-Spaces durch mehrere Nutzer genutzt werden. Auch für Start-Ups könnten die Räume gute Möglichkeiten bieten.
Kontakt:
Hr. Beck
06465/68-11
m.beck@breidenbach.de
Bachstraße 4 - 14, 35236 Breidenbach
Online-Service
Sie benötigen eine Meldebescheinigung, ein polizeiliches Führungszeugnis, eine Geburts- oder Eheurkunde? Möchten Ihr Gewerbe an-, um- oder sogar abmelden?
Diese und viele weitere Dienstleistungen bieten wir Ihnen in unserem Serviceportal online an.
Erledigen Sie Ihre amtlichen Vorgänge ganz bequem von zu Hause aus.
Terminvereinbarung
Geringe oder keine Wartezeiten und die Sicherheit, dass der für Ihr Anliegen richtige Sachbearbeiter auch verfügbar ist.
Buchen Sie einfach online einen verbindlichen Termin für Ihren Besuch in unserem Rathaus. Über die Online-Buchung haben Sie auch die Möglichkeit, den Termin nachträglich anzupassen oder bequem abzusagen.
Natürlich können Sie Ihren Termin auch telefonisch unter 06465 680 vereinbaren.
Terminvereinbarung
Pass- und Meldewesen, Gewerbe
Terminvereinbarung
Öffentliche Sicherheit und Verkehr
Terminvereinbarung
Bauen und Planen
Terminvereinbarung
Steuern, Abgaben und Zahlungsverkehr
Nachrichten, Bekanntmachungen & Informationen
Veranstaltungen
- Damengymnastikgruppe WiesenbachOrt: Dorfgemeinschaftshaus
Dorfcafé
- Minifeuerwehr WiesenbachOrt: Treffpunkt Gerätehaus
Laternenumzug
- Ev. Kirchengemeinde Wiesenbach
Adventsfenster
- Ortsbeirat WiesenbachOrt: Dorfgemeinschaftshaus
Adventlicher Seniorennachmittag
- Gemeinde BreidenbachOrt: Neue Mitte
Weihnachtsmarkt "Adventgestöber"
- Ev. Kirchengemeinde NiederdietenOrt: Hof Haus der Vereine
Nikolausfest
- Ev. Kirchengemeinde NiederdietenOrt: Kirche Niederdieten
Christmesse
- FV 1920 Wiesenbach
Wanderung
Freiwillige Feuerwehr NiederdietenWinterwanderung
- Freiwillige Feuerwehr Wiesenbach
Jahresabschlusswanderung
